

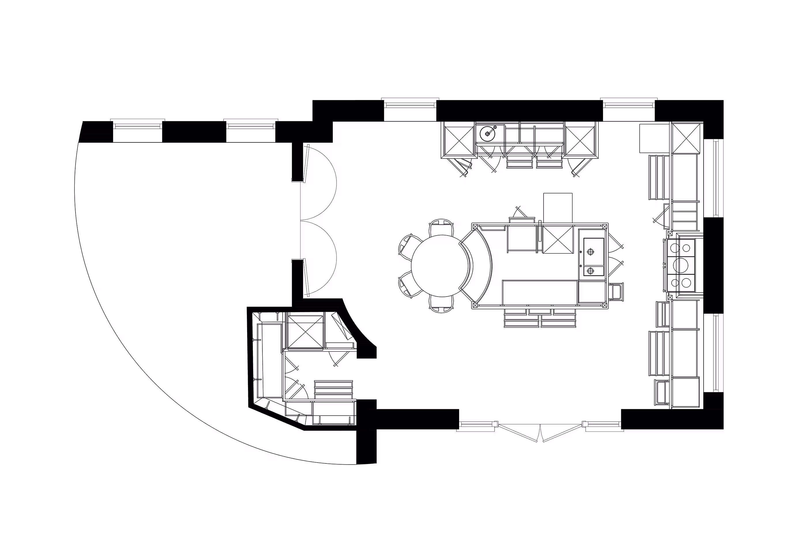
This kitchen project was designed for a large, open-plan space with 5m high ceilings and striking Crittall style windows that frame the surrounding greenery. The design prioritised scale, simplicity, and functionality, ensuring each element felt grounded and calm within this "forever home." Reflecting the client's precision in creating the steel framework, our design used traditional beading on shaker doors and a colour palette of dusty earth, shell, and milk tones, adding a feminine touch. Practicality was paramount; a dominant dresser houses daily essentials like a prep sink and dry goods, complemented by a hidden pantry for endless storage. Luxury was introduced through materials like Dover White Quartzite countertops and large industrial-style pendants, culminating in a beautiful, gracious space perfect for spending time, such as chatting around the curved banquette seating.











